Page suivante
Page précédente
Six-Fours-les-Plages (83140)

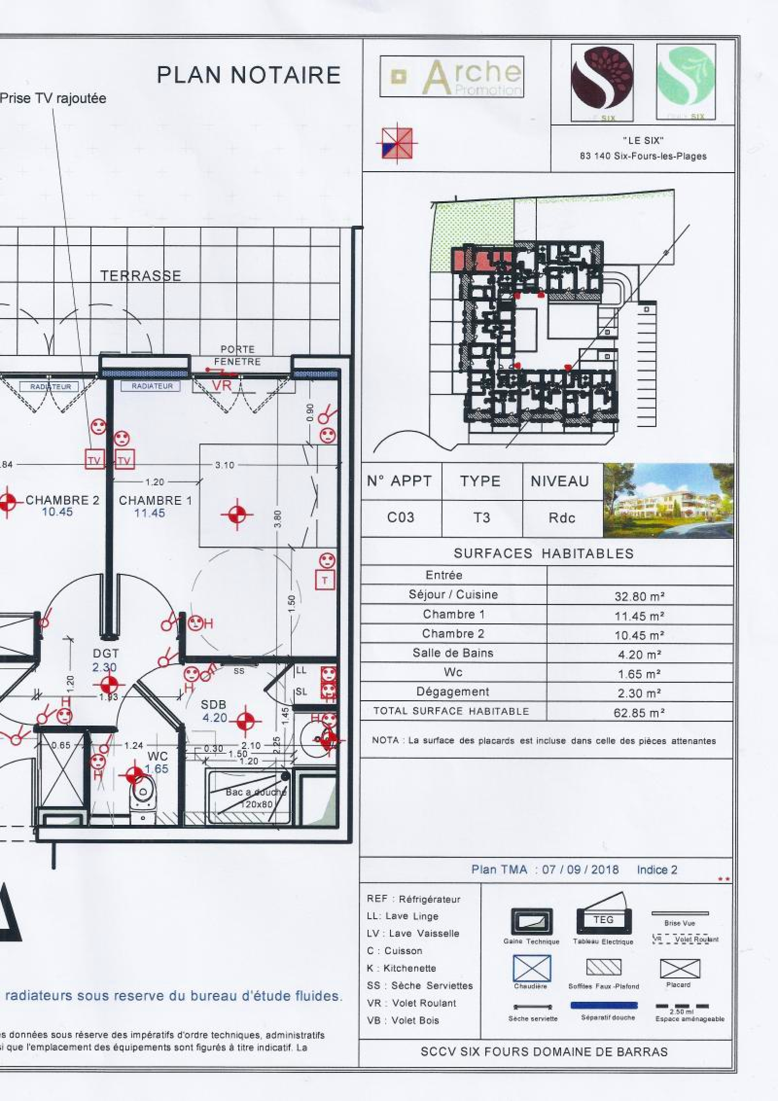
Appartement 3 pièce(s) 2 chambre(s) 62.85 m²

Ascenseur
1
328 000 €
Réf 1918

GCLAIR IMOBILIER vous propose en exclusivité à Six Fours les plages, un rez de jardin dans une belle résidence neuve.

Appartement du type T3 d'une surface de 62,85 m² comprenant un salon séjour donnant sur une terrasse couverte de 34,90 m², une cuisine ouverte et complètement aménagée, deux chambres dont une avec placard, une salle d'eau, un WC, un garage, une terrasse non couverte de 9,60 m² et la jouissance exclusive d'un jardin de 304,40 m².

Située au cœur d'un environnement boisé, cette résidence à taille humaine est sécurisée et clôturée. Visiophone, parking en sous-sol. SIX FOURS LES PLAGES est une plaisante station balnéaire autant qu'une commune agréable à vivre toute l'année. Vous êtes à proximité du centre-ville et de ses nombreux commerces. Côté plage, le Cap Nègre à 5 minutes, doté de paysages exceptionnels, ravira les amateurs de balades et d'activités en extérieur.

Pour plus d'informations, merci de contacter Mme Hamant aux 07 71 04 79 85. contact@gclair-immo.com

GCLAIR IMMOBILIER L'IMMOBILIER EN TOUTE CLARTÉ!

CPI 83052019000040051

Bilan énergétique

Diagnostics énergetiques
A propos de ce bien Caractéristiques de ce bien
  • Surface 62,85 m²
  • 2 chambre(s)
  • construit en 2018
  • Chauffage individuel : radiateur (gaz)
  • 1 garage(s)
  • 1 niveau(x)
  • 1er étage
  • 2 étage(s)
  • ascenseur
  • terrasse
  • visiophone
  • accès handicapé

Financier

Informations financières
Prix de vente honoraires TTC inclus 328 000 €

Autour du bien

Découvrez le quartier

Simulation

Calcul des mensualités
* Champs obligatoires
G Clair Immo Agence